Plan Number:
 |
SD-0248-58
 |
| Description: Expandable 2-story w/ Country porch |
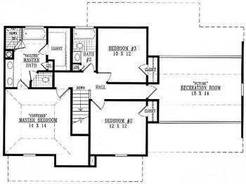
| Bedrooms : |
3 |
| Baths : |
2.5 |
| Width : |
51' 0" |
| Depth : |
38' 0" |
| Main Ceiling Height: |
8 |
| Other Ceiling Height: |
8 |
| Roof Pitch: |
7 in 12 |
| Secondary Roof Pitch: |
14 in 12 |
| Floors : |
2 |
| 1st Floor :
|
1008 sq. ft. |
| 2nd Floor :
|
892 sq. ft. |
| Bonus Room: |
275 sq. ft. |
| Total Living :
|
1900 sq. ft. |
| Total Area :
|
2861 sq. ft. |
| Garage Bays: |
2 |
| Garage Type: |
Attached |
Foundation: Slab |
Options: Reproducible / PDF, Right Reading Reverse, Mirror Reading Reverse, Color Rendering, Modifications, Handicapped Accesable |
| |

 |
|
|