Plan Number:
 |
SD-0345-58
 |
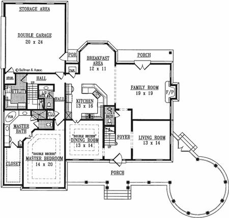
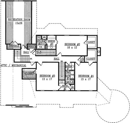
| Description: Classic 2-Story Country Style Home with Gazebo |
| Bedrooms : |
4 |
| Baths : |
4 |
| Width : |
60' 7" |
| Depth : |
65' 5" |
| Main Ceiling Height: |
9 |
| Other Ceiling Height: |
9 |
| Roof Pitch: |
8 in 12 |
| Secondary Roof Pitch: |
14 in 12 |
| Floors : |
2 |
| 1st Floor :
|
2241 sq. ft. |
| 2nd Floor :
|
1755 sq. ft. |
| Bonus Room: |
454 sq. ft. |
| Total Living :
|
4450 sq. ft. |
| Total Area :
|
5296 sq. ft. |
| Garage Bays: |
2 |
| Garage Type: |
Attached |
Foundation: Slab |
Options: Reproducible / PDF, Right Reading Reverse, Mirror Reading Reverse, Color Rendering, Modifications, Handicapped Accesable |
| |

 |
|
|