Plan Number:
 |
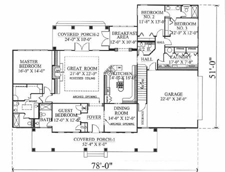
SD-0388-67
 |
| Description: Beautiful traditional styling featuring open living area and spacious bedrooms. Separate breakfast room off kitchen. |
| Bedrooms : |
4 |
| Baths : |
3.5 |
| Width : |
78' 0" |
| Depth : |
51' 0" |
| Main Ceiling Height: |
9 |
| Other Ceiling Height: |
11 |
| Roof Pitch: |
8 in 12 |
| Secondary Roof Pitch: |
None |
| Floors : |
1 |
| 1st Floor :
|
2605 sq. ft. |
| Total Living :
|
2605 sq. ft. |
| Total Area :
|
3864 sq. ft. |
| Garage Bays: |
2 |
| Garage Type: |
Attached |
Foundation: Slab, Crawl Space, Standard Basement |
Options: Reproducible / PDF, Right Reading Reverse, Mirror Reading Reverse, Modifications |
| |

 |
|
|