Plan Number:
 |
SD-3994-67
 |
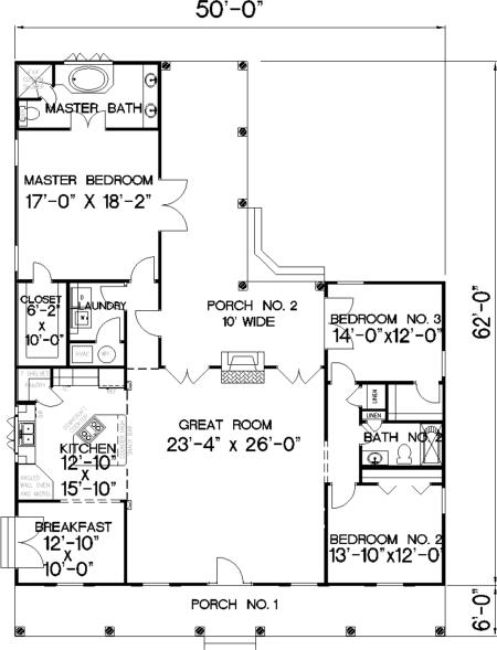
| Description: A Classic Southern Country Style Home with Wide Porches for Relaxing. Large Open Great Room with Double French Doors and Gas Fireplace. Kitchen has a Unique Design with a Large Island Cooktop and Snack Bar, Angled Wall Oven and Built In Microwave, An Angled Pantry for easy access. Master Bedroom has a Large Walk In Closet and Access to the 10' Wide Rear Porch for Privacy. Master Bath has a Whirlpool Tub and Large 4' X 4' Shower. Bedrooms 2 & 3 Share a Large Bath, Bedroom 3 has Access to the Rear Porch with French Doors. |
| Bedrooms : |
3 |
| Baths : |
2 |
| Width : |
50' 0" |
| Depth : |
68' 0" |
| Main Ceiling Height: |
9 |
| Roof Pitch: |
7 in 12 |
| Secondary Roof Pitch: |
None |
| Floors : |
1 |
| 1st Floor :
|
2052 sq. ft. |
| Total Living :
|
2052 sq. ft. |
| Total Area :
|
2802 sq. ft. |
| Garage Bays: |
2 |
| Garage Type: |
Detached |
Foundation: Slab, Crawl Space |
Options: Reproducible / PDF, Mirror Reading Reverse, Modifications |
| |

 |
|
|