Plan Number:
 |
SD-4000-67
 |
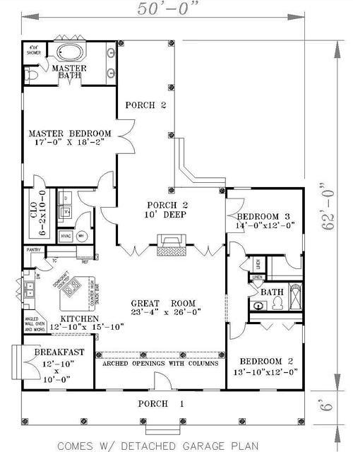
| Description: This Stylish Classic Southern Home has A Grand Opening into the Great Room with Column Accents, a Lovely Gas Fireplace and Double French Doors that access the Rear Porch. A Unique Kitchen Design with a Large Island with Cooktop and Snack Bar, Angled Wall Oven with Built In Microwave and Angled Pantry for Storage. Master Bedroom Highlights Walk In Closet, And French Doors that Open on to the Rear Porch. Master Bath has a Whirlpool Tub and Large Custom Shower. Bedrooms 2 & 3 Share a Large Bath, Bedroom 3 has access to rhe Rear Porch as well. |
| Bedrooms : |
3 |
| Baths : |
2 |
| Width : |
50' 0" |
| Depth : |
68' 0" |
| Main Ceiling Height: |
9 |
| Roof Pitch: |
7 in 12 |
| Secondary Roof Pitch: |
None |
| Floors : |
1 |
| 1st Floor :
|
2052 sq. ft. |
| Total Living :
|
2052 sq. ft. |
| Total Area :
|
2802 sq. ft. |
| Garage Bays: |
2 |
| Garage Type: |
Detached |
Foundation: Slab, Crawl Space |
Options: Reproducible / PDF, Mirror Reading Reverse, Modifications |
| |

 |
|
|