Plan Number:
 |
SD-4343-162
 |
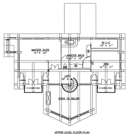
| Description: *Log Home
*Beach/Coastal Style
*Cathedral Ceilings
*Custom View Windows
*Large Deck
*Large Master Suite
*Den
*Spiral Staircase
*Loft |
| Bedrooms : |
3 |
| Baths : |
2 |
| Width : |
56' 0" |
| Depth : |
44' 0" |
| Main Ceiling Height: |
9 |
| Other Ceiling Height: |
8 |
| Roof Pitch: |
14 in 12 |
| Secondary Roof Pitch: |
6 in 12 |
| Floors : |
2 |
| 1st Floor :
|
1901 sq. ft. |
| 2nd Floor :
|
1402 sq. ft. |
| Other Room: |
731 sq. ft. |
| Total Living :
|
3303 sq. ft. |
| Total Area :
|
4034 sq. ft. |
| Garage Bays: |
0 |
| Garage Type: |
Carport |
Foundation: Crawl Space |
Options: Reproducible / PDF, Right Reading Reverse, Mirror Reading Reverse, Color Rendering, Modifications, CAD Files |
| |

 |
|
|