Plan Number:
 |
SD-4732-162
 |
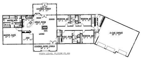
| Description: *Standard Frame Construction
*Ranch Style
*2 Levels
*3 Car Garage
*Covered Porch
*Large Master Suite
*Den
*Large Master Bathroom
*Fireplace
*Large Great Room
*Utility Room |
| Bedrooms : |
4 |
| Baths : |
2.5 |
| Width : |
147' 4" |
| Depth : |
53' 0" |
| Main Ceiling Height: |
8 |
| Roof Pitch: |
9 in 12 |
| Secondary Roof Pitch: |
7 in 12 |
| Floors : |
2 |
| 1st Floor :
|
3322 sq. ft. |
| Total Living :
|
3332 sq. ft. |
| Total Area :
|
5885 sq. ft. |
| Garage Bays: |
3 |
| Garage Type: |
Attached |
Foundation: Crawl Space |
Options: Reproducible / PDF, Right Reading Reverse, Mirror Reading Reverse, Color Rendering, Modifications, CAD Files |
| |

 |
|
|