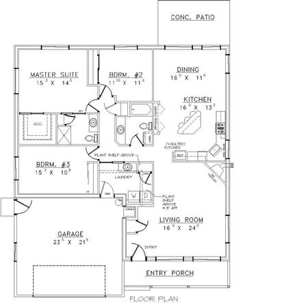
Plan Number:
 |
SD-5021-162
 |
| Description: *Insulated Concrete Form Construction
*Covered Entry Porch
*Vaulted Ceilings
*Fireplace
*Breakfast Bar
*Garage
|
| Bedrooms : |
3 |
| Baths : |
2 |
| Width : |
48' 0" |
| Depth : |
56' 0" |
| Main Ceiling Height: |
14 |
| Roof Pitch: |
5 in 12 |
| Secondary Roof Pitch: |
None |
| Floors : |
1 |
| 1st Floor :
|
1968 sq. ft. |
| Total Living :
|
1968 sq. ft. |
| Total Area :
|
2501 sq. ft. |
| Garage Bays: |
2 |
| Garage Type: |
Attached |
Foundation: Crawl Space |
Options: Reproducible / PDF, Right Reading Reverse, Mirror Reading Reverse, Color Rendering, Modifications, CAD Files |
| |

 |
|
|