Plan Number:
 |
SD-5052-162
 |
| Description: *Insulated Concrete Form Construction
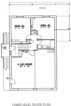
*2-Car Garage
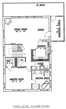
*Covered Entry Porch
*Large Great Room With Corner Fireplace
*Eating Bar In Kitchen
*Spa Tub In Master Bathroom
*Walk-In Closet In Master Bedroom
*Utility Room
*Guest Bathroom
|
| Bedrooms : |
3 |
| Baths : |
2.5 |
| Width : |
28' 0" |
| Depth : |
44' 0" |
| Main Ceiling Height: |
8 |
| Other Ceiling Height: |
9 |
| Roof Pitch: |
6 in 12 |
| Secondary Roof Pitch: |
None |
| Floors : |
1 |
| 1st Floor :
|
1232 sq. ft. |
| Other Room: |
579 sq. ft. |
| Total Living :
|
1811 sq. ft. |
| Total Area :
|
2608 sq. ft. |
| Garage Bays: |
2 |
| Garage Type: |
Attached |
Foundation: Slab |
Options: Reproducible / PDF, Right Reading Reverse, Mirror Reading Reverse, Color Rendering, Modifications, CAD Files |
| |

 |
|
|