Plan Number:
 |
SD-5060-162
 |
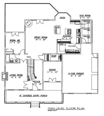
| Description: *Standard Frame Construction
*Southern Style
*2 Car Garage
*Eating Bar In Kitchen
*Utility/Mud Room
*Great Room
*Fireplace In Living Room
*Sun Room
*Butlers Pantry
*Covered Entry Porch
*Large Walk-In Closet
*Attic
*Unfinished Basement
|
| Bedrooms : |
5 |
| Baths : |
5 |
| Width : |
58' 6" |
| Depth : |
61' 0" |
| Main Ceiling Height: |
9 |
| Other Ceiling Height: |
9 |
| Roof Pitch: |
6 in 12 |
| Secondary Roof Pitch: |
None |
| Floors : |
2 |
| 1st Floor :
|
1627 sq. ft. |
| 2nd Floor :
|
1380 sq. ft. |
| Other Room: |
921 sq. ft. |
| Total Living :
|
3928 sq. ft. |
| Total Area :
|
4996 sq. ft. |
| Garage Bays: |
2 |
| Garage Type: |
Attached |
Foundation: Partial Basement |
Options: Reproducible / PDF, Right Reading Reverse, Mirror Reading Reverse, Color Rendering, Modifications, CAD Files |
| |

 |
|
|