Plan Number:
 |
SD-7242-162
 |
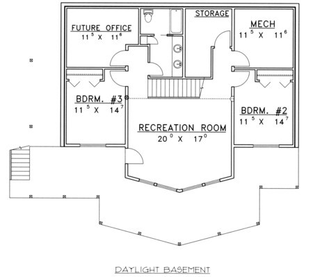
| Description: STANDARD FRAME,REC. ROOM,COVERED PORCH,MASTER SUITE WITH PRIVATE BATH, U-SHAPED KITCHEN |
| Bedrooms : |
3 |
| Baths : |
2.5 |
| Width : |
46' 0" |
| Depth : |
36' 10" |
| Main Ceiling Height: |
9 |
| Other Ceiling Height: |
9 |
| Roof Pitch: |
8 in 12 |
| Secondary Roof Pitch: |
None |
| Floors : |
2 |
| 1st Floor :
|
1444 sq. ft. |
| 2nd Floor :
|
1118 sq. ft. |
| Other Room: |
1444 sq. ft. |
| Total Living :
|
4006 sq. ft. |
| Total Area :
|
4006 sq. ft. |
| Garage Bays: |
0 |
| Garage Type: |
None |
Foundation: Basement Additional Charge |
Options: Reproducible / PDF, Right Reading Reverse, Mirror Reading Reverse, Color Rendering, Modifications, CAD Files |
| |

 |
|
|