Plan Number:
 |
SD-7244-162
 |
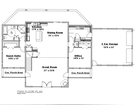
| Description: GUEST SUITE,DINING ROOM,OFFICE,COVERED PORCH,KITCHEN, UPSTAIRS MASTER SUITE,LOFT,BONUS ROOM |
| Bedrooms : |
3 |
| Baths : |
3 |
| Width : |
84' 0" |
| Depth : |
42' 0" |
| Main Ceiling Height: |
9 |
| Other Ceiling Height: |
11 |
| Roof Pitch: |
12 in 12 |
| Secondary Roof Pitch: |
None |
| Floors : |
2 |
| 1st Floor :
|
2016 sq. ft. |
| 2nd Floor :
|
1367 sq. ft. |
| Total Living :
|
3721 sq. ft. |
| Total Area :
|
4345 sq. ft. |
| Garage Bays: |
2 |
| Garage Type: |
Attached |
Foundation: Crawl Space |
Options: Reproducible / PDF, Right Reading Reverse, Mirror Reading Reverse, Color Rendering, Modifications, CAD Files |
| |

 |
|
|