Plan Number:
 |
SD-7348-162
 |
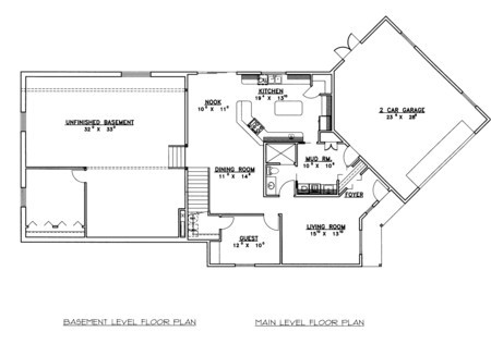
| Description: Standard Frame,fireplace in great room,master suite with private bath, nook, mud room,office |
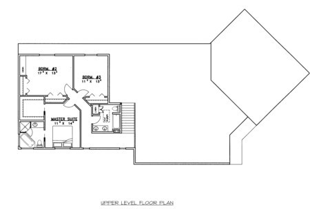
| Bedrooms : |
3 |
| Baths : |
2.5 |
| Width : |
95' 0" |
| Depth : |
51' 5" |
| Main Ceiling Height: |
8 |
| Other Ceiling Height: |
9 |
| Roof Pitch: |
10 in 12 |
| Secondary Roof Pitch: |
None |
| Floors : |
2 |
| 1st Floor :
|
1375 sq. ft. |
| 2nd Floor :
|
1078 sq. ft. |
| Total Living :
|
3626 sq. ft. |
| Total Area :
|
4248 sq. ft. |
| Garage Bays: |
2 |
| Garage Type: |
Attached |
Foundation: Standard Basement |
Options: Reproducible / PDF, Right Reading Reverse, Mirror Reading Reverse, Color Rendering, Modifications, CAD Files |
| |

 |
|
|