Plan Number:
 |
SD-7777-162
 |
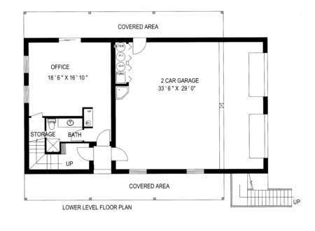
| Description: Insulated concrete forms
Deck area
Great room
Cozy open floor plan
kitchen island
office, pantry
|
| Bedrooms : |
2 |
| Baths : |
3 |
| Width : |
55' 0" |
| Depth : |
31' 0" |
| Main Ceiling Height: |
14 |
| Other Ceiling Height: |
9 |
| Roof Pitch: |
7 in 12 |
| Secondary Roof Pitch: |
None |
| Floors : |
2 |
| 1st Floor :
|
1395 sq. ft. |
| 2nd Floor :
|
604 sq. ft. |
| Total Living :
|
1999 sq. ft. |
| Total Area :
|
3105 sq. ft. |
| Garage Bays: |
1 |
| Garage Type: |
Attached |
Foundation: Slab |
Options: Reproducible / PDF, Right Reading Reverse, Mirror Reading Reverse, Color Rendering, Modifications, CAD Files |
| |

 |
|
|