Plan Number:
 |
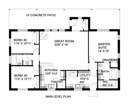
SD-7991-162
 |
| Description: STANDARD FRAME
CONCRETE PATIO
GREAT ROOM
PANTRY,
UTILITY,WIC
|
| Bedrooms : |
3 |
| Baths : |
2 |
| Width : |
54' 0" |
| Depth : |
36' 0" |
| Main Ceiling Height: |
14 |
| Roof Pitch: |
7 in 12 |
| Secondary Roof Pitch: |
4 in 12 |
| Floors : |
1 |
| 1st Floor :
|
1680 sq. ft. |
| Total Living :
|
1680 sq. ft. |
| Total Area :
|
1680 sq. ft. |
| Garage Bays: |
0 |
| Garage Type: |
None |
Foundation: Slab |
Options: Reproducible / PDF, Right Reading Reverse, Mirror Reading Reverse, Color Rendering, Modifications |
| |

 |
|
|