Plan Number:
 |
SD-0857-58
 |
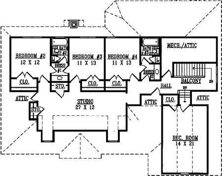
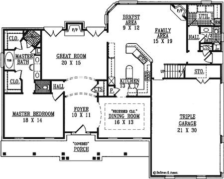
| Description: Country style 2-story home. Perfect for golf course or lake view. expandable area offers many options |
| Bedrooms : |
4 |
| Baths : |
3.5 |
| Width : |
67' 9" |
| Depth : |
54' 7" |
| Main Ceiling Height: |
10 |
| Other Ceiling Height: |
9 |
| Roof Pitch: |
9 in 12 |
| Secondary Roof Pitch: |
4 in 12 |
| Floors : |
2 |
| 1st Floor :
|
2163 sq. ft. |
| 2nd Floor :
|
1337 sq. ft. |
| Total Living :
|
3500 sq. ft. |
| Total Area :
|
4841 sq. ft. |
| Garage Bays: |
3 |
| Garage Type: |
Attached |
Foundation: Slab |
Options: Reproducible / PDF, Right Reading Reverse, Mirror Reading Reverse, Color Rendering, Modifications, Handicapped Accesable |
| |

 |
|
|