|
|

You are Viewing a reverse of this plan
|


|
|
Plan Number:
 |
SD-3504-67
 |
| Description: Home Again
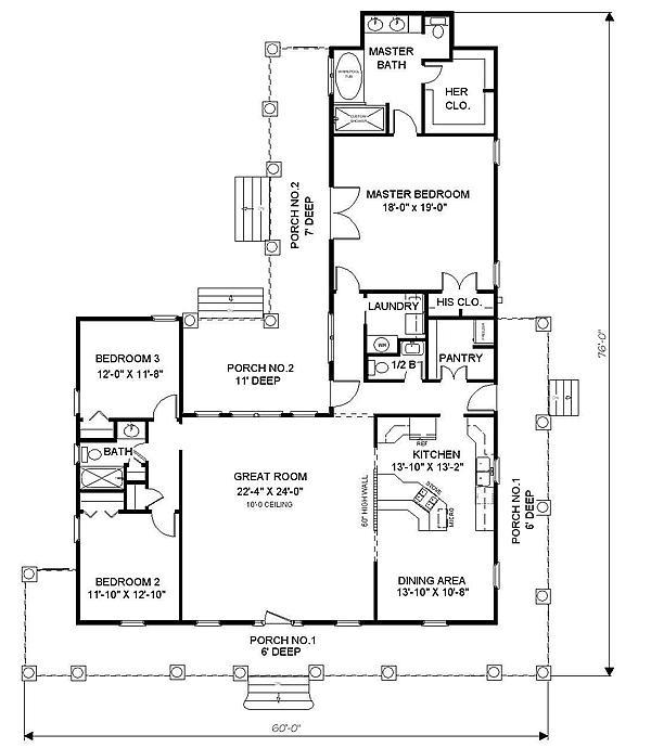
Welcome back to porch swings and yesterday with this classic southern country design!
Wrap around porches and dormers give this home just the right touches to make you feel at home. BUT step inside and you will know that this home is designed for TODAY.
The Huge Great Room boasts a 10'-0" celing and a wall of windows looking onto the rear covered porch.
From the Great Room a 5'-0" high wall seperates the angled bar kitchen from the guests view without closing off the cook. The island holds a drop in downdraft range and built-in convection/microwave combo. A 42" high raised snack bar gives an extra eating area to the Dining Area.
The Master Bedroom has french doors looking out onto the rear porch. A spa style bath holds dual sinks, a whirlpool tub and a large custom shower. His and Her closets give this home tons of storage!
A wonderful walk-in pantry holds a freezer and all the room you need to store extra grocerys, towels, or extra items for the kitchen.
A cute 1/2 bath is tucked close to the laundry room and near the side door for guests.
Bedrooms 2 and 3 share a nice size bath.
Home Again
Welcome back to porch swings and yesterday with this classic southern country design!
Wrap around porches and dormers give this home just the right touches to make you feel at home. BUT step inside and you will know that this home is designed for TODAY.
The Huge Great Room boasts a 10'-0" celing and a wall of windows looking onto the rear covered porch.
From the Great Room a 5'-0" high wall seperates the angled bar kitchen from the guests view without closing off the cook. The island holds a drop in downdraft range and built-in convection/microwave combo. A 42" high raised snack bar gives an extra eating area to the Dining Area.
The Master Bedroom has french doors looking out onto the rear porch. A spa style bath holds dual sinks, a whirlpool tub and a large custom shower. His and Her closets give this home tons of storage!
A wonderful walk-in pantry holds a freezer and all the room you need to store extra grocerys, towels, or extra items for the kitchen.
A cute 1/2 bath is tucked close to the laundry room and near the side door for guests.
Bedrooms 2 and 3 share a nice size bath.
|
| Bedrooms : |
3 |
| Baths : |
2.5 |
| Width : |
60' 0" |
| Depth : |
76' 0" |
| Main Ceiling Height: |
8 |
| Other Ceiling Height: |
10 |
| Roof Pitch: |
8 in 12 |
| Secondary Roof Pitch: |
None |
| Floors : |
1 |
| 1st Floor :
|
2123 sq. ft. |
| Total Living :
|
2123 sq. ft. |
| Total Area :
|
3131 sq. ft. |
| Garage Bays: |
0 |
| Garage Type: |
None |
Foundation: Slab, Crawl Space |
Options: Reproducible / PDF, Right Reading Reverse, Mirror Reading Reverse, Modifications |
| |

 |
|
|
| Five Sets | Eight Sets | Additional Sets | Reverse Sets | Reproducibles / PDF |
| $720.00 | $765.00 | $35.00 | $150.00 | $920.00 |
|
|