Plan Number:
 |
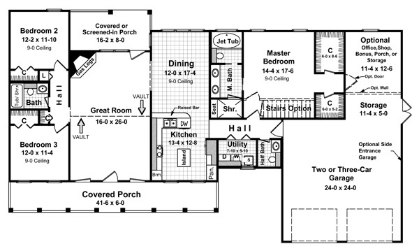
SD-0816-64
 |
| Description: Charming country styling featuring open floor plan, covered front porch and large bedrooms. |
| Bedrooms : |
3 |
| Baths : |
2.5 |
| Width : |
78' 0" |
| Depth : |
46' 0" |
| Main Ceiling Height: |
9 |
| Roof Pitch: |
10 in 12 |
| Secondary Roof Pitch: |
None |
| Floors : |
2 |
| 1st Floor :
|
1799 sq. ft. |
| Bonus Room: |
394 sq. ft. |
| Total Living :
|
1799 sq. ft. |
| Total Area :
|
3348 sq. ft. |
| Garage Bays: |
2 |
| Garage Type: |
Attached |
Foundation: Slab, Crawl Space |
Options: Reproducible / PDF, Right Reading Reverse, Material List, Mirror Reading Reverse, Color Rendering, Modifications, CAD Files |
| |

 |
|
|